Erfolge der Freien Wählergemeinschaft

Infrastruktur
Versorgung und Infrastruktur

Versorgung und Infrastruktur

Gemeindliche Einrichtungen und Gebäude, Kanäle und Kläranlagen sind das größte materielle Vermögen unserer Gemeinde. Der regelmäßige Unterhalt und die Erneuerung sind Aufgaben der Gemeinde. Nur so wird gewährleistet, dass diese Anlagen einen ordentlichen Eindruck machen, ihre Aufgabe erfüllen und für die nächsten Generationen erhalten bleiben.
Straßen, Wege, Plätze

Straßen, Wege, Plätze

Straßen und Wege, Plätze und Ortsmittelpunkte verbinden unsere Ortsteile, schaffen Verbindungen, sind wichtig für Sport und Erholung und sind Treffpunkte für unsere Bürgerinnen und Bürger.

Verein und Ehrenamt

Verein und Ehrenamt

Ein reges kulturelles und gesellschaftlichen Leben in unseren Ortsteilen trägt zur Persönlichkeitsentfaltung des Einzelnen, aber auch für den Zusammenhalt der Gemeinschaft bei. Die Vielzahl und Vielfalt der kulturellen und gesellschaftlichen Veranstaltungen, aktives Gestalten ebenso wie die Teilnahme prägen den Charakter eines Gemeinwesens.

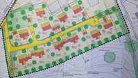
Bauen und Wohnen
Bauen und Wohnen

Bauen und Wohnen

Die Gemeinde Pollenfeld ist eine wachsende Gemeinde mit Bedarf nach Wohnen. In jedem Ortsteil stehen Bauplätze zur Verfügung, damit sich junge Familien ihr Heim schaffen können.

Bildung und Erziehung
Bildung und Erziehung

Bildung und Erziehung

Die Erziehung und die Bildung unserer Kinder ist eine zukunftsorientierte Aufgabe. Dies betrifft die Kindertagesstätte, die Kindergärten und die Grundschule.

Die Kinder, Erzieherinnen und Lehrerinnen sollen bestmögliche Voraussetzungen und Bedingungen für den Unterricht und vorfinden.